- Vị trí sân bay Phú Quốc: tọa lạc tại đặc khu Phú Quốc, tỉnh An Giang.
- Các hãng hàng không hoạt động tại sân bay Phú Quốc: Các hãng hàng không nội địa Việt Nam như Vietnam Airlines, VietJet Air… đều khai thác các chuyến bay đến và đi từ sân bay Phú Quốc. Ngoài ra, sân bay cũng đón một số chuyến bay quốc tế từ các nước như Hàn Quốc, Trung Quốc, Thái Lan.
- Cách di chuyển từ sân bay Phú Quốc về trung tâm: taxi (các hãng uy tín như Xanh SM), xe buýt của các hãng hàng không hoặc khách sạn và dịch vụ xe đưa đón đặt trước.

Sân bay Phú Quốc (Ảnh: Sưu tầm)
Sân bay Phú Quốc chính là tên gọi quen thuộc của sân bay quốc tế Phú Quốc, tên chính thức là Cảng hàng không quốc tế Phú Quốc với mã sân bay PQC. Nằm cách trung tâm khoảng 10km, sân bay Phú Quốc chính là đểm dừng chân đầu tiên trong hành trình du lịch Phú Quốc nếu du khách chọn đến đảo ngọc bằng máy bay. Cùng tìm hiểu sân bay ở đâu, cách di chuyển đến đây như thế nào và bỏ túi kinh nghiệm thực hiện thủ tục đến và đi sân bay Phú Quốc.
1. Sân bay Phú Quốc ở đâu?
Sân bay Phú Quốc có tên tiếng Anh là Phu Quoc International Airport (PQIA) và có thông tin hành chính cụ thể như sau:
- Địa chỉ: đặc khu Phú Quốc, tỉnh An Giang
- Số điện thoại: (0773) 3.848.077. Fax: (0773) 3.846.693
- AFS: VVPQYDYX và VVPQZPZX. SITA: PQCKLXH
- Mã cảng hàng không (code): PQC

Sân bay Phú Quốc nằm ở đặc khu Phú Quốc (Ảnh: Sưu tầm)
Sân bay quốc tế Phú Quốc nằm ở khu vực phía Nam của đảo Phú Quốc. Phía Đông của sân bay giúp với Hàm Ninh, phía Tây giáp biển, phía Nam giáp Dương Tơ và phía Bắc giáp với khu phố Suối Mây.
Sân bay Phú Quốc chính là cửa ngõ thông thương kinh tế quốc tế của Phú Quốc với khu vực biên giới biển đảo phía Nam. Chính vì vậy, sân bay Phú Quốc có vai trò đặc biệt quan trọng trong việc giao thương, kết nối đảo Phú Quốc với các khu vực trong đất liền, phát triển kinh tế – xã hội, giữ vững an ninh – quốc phòng trong khu vực.
Bỏ túi lịch trình chi tiết chơi gì vui, ăn gì ngon tại Phú Quốc 3 ngày 2 đêm mới nhất
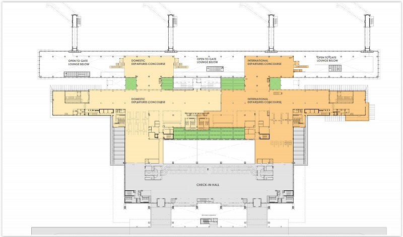
2. Sơ đồ sân bay quốc tế Phú Quốc
Sân bay mới Phú Quốc được đầu tư xây dựng theo đạt tiêu chuẩn 4E của Tổ chức Hàng không Dân dụng Quốc tế (ICAO). Sân bay bao gồm cá khu vực chính như: Đường băng, sân đỗ tàu bay và nhà ga hành khách.
Đường băng của sân bay Phú Quốc gồm một đường cất – hạ cánh rộng 45m, dài 3000m và một đường lăn song song rộng 23m, dài 3000m. Ngoài ra, sân bay Phú Quốc còn có một đường lăn tắt nhằm đáp ứng nhu cầu khai thác chuyến bay theo quy định.

Đường băng sân bay Phú Quốc (Ảnh: Sưu tầm)
Sân đỗ tàu bay của sân bay đảo Phú Quốc có 8 vị trí đỗ máy bay dòng Airbus A320 – A321 vào giờ cao điểm.
Nhà ga hành khách sân bay đảo Phú Quốc có 2 tầng, tổng diện tích là 24.325m2. Trong đó:
- Tầng trệt: khu vực tiếp đón, phục vụ hành khách đến của các chuyến bay nội địa, quốc tế. Tầng trệt sân bay bao gồm: Khu vực hành lý, hải quan, phòng kỹ thuật, quầy bán hàng tiêu dùng, quầy cung cấp dịch vụ ăn uống.

Sơ đồ tầng trệt nhà ga sân bay Phú Quốc (Ảnh: Sưu tầm)
- Tầng 1: khu vực phục vụ hành khách khởi hành đi các chuyến bay nội địa, quốc tế. Bao gồm: Quầy làm thủ tục check-in, băng chuyền hành lý, khu vực cửa an ninh, phòng chờ, cửa hàng miễn thuế, quầy cung cấp dịch vụ ăn uống.

Sơ đồ tầng 1 nhà ga sân bay Phú Quốc (Ảnh: Sưu tầm)
Xem thêm: thông tin về bản đồ du lịch Phú Quốc mới nhất 2025 để lên kế hoạch cho chuyến đi sắp tới
Các sản phẩm được yêu thích nhất
3. Từ sân bay Phú Quốc về trung tâm bao xa? Đi bằng phương tiện gì?
Từ sân bay Phú Quốc về trung tâm mất khoảng 30 – 40 phút, tùy thuộc vào cung đường bạn di chuyển và loại phương tiện bạn chọn đi. Xuống sân bay, du khách có thể đi xe bus, gọi taxi, xe ôm hoặc thuê xe máy để di chuyển về trung tâm.
Xe bus:
Nếu muốn tiết kiệm chi phí, bạn có thể chọn di chuyển bằng xe bus. Giá vé dao động trong khoảng 15.000 – 40.000 VNĐ/lượt. Bạn có thể tham khảo một số tuyến xe bus từ Phú Quốc về trung tâm như sau:
- Xe 11: Sân bay Phú Quốc – Dương Đông
- Xe sân bay Phú Quốc – Cảng Bãi Vòng
- Xe sân bay Phú Quốc – An Thới
- Xe sân bay Phú Quốc – Hòn Thơm
Xe taxi
Taxi là phương tiện di chuyển nhanh chóng, thuận tiện, phù hợp với nhóm đông người. Giá di chuyển dao động trong khoảng 170.000 – 220.000 VNĐ/lượt. Bạn có thể tham khảo một số hãng taxi ở Phú Quốc như:
- Taxi Mai Linh (0773 997 799)
- Taxi Vinasun (029 73 272 727)
- Taxi Sasco (029 73 767 676)
- Taxi Phú Quốc (029 73 757 575)
- Taxi Quang Đăng (0973 789 789)
Xe ôm
Đây là phương tiện phù hợp với hành khách đi một mình, không có quá nhiều hành lý và muốn tiết kiệm chi phí. Giá di chuyển bằng xe ôm nhìn chung không quá cao, bạn có thể mặc cả để có mức giá tốt. Tuy nhiên, xe ôm không thể dừng trong sân bay nên để đón xe, du khách cần đi bộ ra ngoài cổng.
Xe máy
Để thuận tiện cho việc di chuyển từ sân bay về trung tâm cũng như đến các địa điểm du lịch khác, bạn có thể thuê xe tại các cơ sở phía ngoài sân bay. Giá thê xe dao động trong khoảng 120.000 – 150.000 VNĐ/ngày (tùy cơ sở và loại xe)
Tự lái xe từ sân bay Phú Quốc về trung tâm, bạn có thể tham khảo các cung đường sau:
- Từ sân bay đi qua TL47, thời gian di chuyển khoảng 30 phút.
- Thứ 2 đi theo đường tránh Dương Đông, thời gian đi khoảng 37 phút.
* Lưu ý: Thông tin về các chuyến xe, giá xe trên chỉ mang tính tham khảo, có thể thay đổi tùy chính sách của các hãng xe, tùy vào thời điểm. Du khách có nhu cầu di chuyển, vui lòng liên hệ trực tiếp nhà xe để biết thông tin chính xác.

Du khách có thể lựa chọn đi xe bus từ sân bay về trung tâm để tiết kiệm chi phí (Ảnh: Sưu tầm)
4. Các hãng hàng không hoạt động & điểm đến
4.1. Các hãng hàng không nội địa tại sân bay Phú Quốc
Các hãng hàng Việt Nam không hoạt động tại sân bay Phú Quốc bao gồm:
- Vietnam Airlines: điểm đến là Hà Nội, Cần Thơ, Đà Lạt và Thành phố Hồ Chí Minh.
- Bamboo Airways: điểm đến là Cần Thơ, Hải Phòng, Đà Nẵng, Hà Nội, Rạch Giá, Thành phố Hồ Chí Minh.
- Vietjet Air: điểm đến là Đà Lạt, Hà Nội, Hải Phòng, Huế, Nha Trang, Vinh, Thanh Hoá, Thành phố Hồ Chí Minh, Hong Kong, Mumbai (Ấn Độ), Seoul – Incheon (Hàn Quốc) và New Delhi (Ấn Độ).
- Vietravel Airlines: điểm đến là Thành phố Hồ Chí Minh và Hà Nội.
- Pacific Airlines: điểm đến là Thành phố Hồ Chí Minh.

Bamboo Airways là một trong những hãng hàng không Việt Nam hoạt động tại sân bay Phú Quốc (Ảnh: Sưu tầm)
4.2. Các hãng hàng không quốc tế tại sân bay Phú Quốc
Các hãng bay nối Phú Quốc – Trung Quốc gồm có:
- China Eastern Airlines: điểm đến là Côn Minh (Trung Quốc)
- China Southern Airlines: điểm đến là Quảng Châu (Trung Quốc)
- Donghai Airlines: điểm đến là Thâm Quyến (Trung Quốc – theo mùa)
- Lucky Air: điểm đến là Côn Minh (Trung Quốc – theo mùa)
- Okay Airways: điểm đến là Nam Ninh (Trung Quốc)
- Qingdao Airlines: điểm đến là Thanh Đảo (Trung Quốc)
- Hainan Airlines: điểm đến là Thâm Quyến (Trung Quốc)
Các hãng bay nối Phú Quốc – Hàn Quốc
- Jeju Air: điểm đến là Seoul-Incheon (Hàn Quốc)
- Eastar Jet: điểm đến là Seoul (Hàn Quốc)
- Korean Air: điểm đến là Seoul (Hàn Quốc)
- Asiana Airlines: điểm đến là Seoul-Incheon (Hàn Quốc)
Các hãng bay quốc tế khác
- Thai VietJet Air: điểm đến là Bangkok–Suvarnabhumi (Thái Lan)
- Bangkok Airways: điểm đến là Bangkok–Suvarnabhumi (Thái Lan)
- AirAsia: điểm đến là Kuala Lumpur (Malaysia)
- Neos: điểm đến là Milan-Malpensa (Italy – theo mùa), Yangon (Myanmar – theo mùa)
- Azur Air: điểm đến là Krasnoyarsk, Moscow-Vnukovo, Yekaterinburg (Nga – thuê chuyến theo mùa)
- Thomson Airways: điểm đến là Helsinki (Phần Lan – theo mùa)
- Royal Flight: điểm đến là Irkutsk, Krasnoyarsk, Novosibirsk, Moscow, Yekaterinburg (Nga – thuê chuyến theo mùa)
- TUI Airways: điểm đến là London–Gatwick (Anh – theo mùa), Copenhagen (Đan Mạch – thuê chuyến theo mùa), Helsinki (Phần Lan – thuê chuyến theo mùa), Landvetter (Thụy Điển – thuê chuyến theo mùa), Lulea (Thụy Điển – thuê chuyến theo mùa), Oslo (Na Uy – thuê chuyến theo mùa), Stockholm-Arlanda (Thụy Điển – thuê chuyến theo mùa)

Nhiều hãng hàng không quốc tế hoạt động tại sân bay Phú Quốc (Ảnh: Sưu tầm)
Xem thêm: Du lịch An Giang – TOP 15+ địa điểm không thể bỏ lỡ 2025
5. Thủ tục đến và đi tại sân bay Phú Quốc
5.1. Thủ tục với hành khách đến sân bay
Đối với hành khách đến sân bay Phú Quốc để thực hiện các chuyến bay nội địa và quốc tế, cần chú ý các thủ tục sau:
- Phải có mặt trước giờ khởi hành ít nhất 40 phút để làm thủ tục hàng không.
- Hành khách đi chuyến bay Quốc nội, di chuyển đến các quầy từ 1 – 18 để làm thủ tục, hành khách bay Quốc tế, đến các quầy từ 19 – 36 để làm thủ tục.
- Đối với khách hạng thương gia, khách hàng có thẻ vàng, thẻ Bạch kim, thẻ Titan, thẻ Elite, thẻ Elite Plus, thẻ liên minh SKY TEAM được làm thủ tục tại quầy riêng.
- Hành khách nếu không có hành lí ký gửi, thực hiện làm thủ tục tại Quầy không hành lý ký gửi.
- Tiến hành làm thủ tục tại quầy, hành khách vui lòng chuẩn bị trước vé và giấy tờ tùy thân (chứng minh nhân dân, bằng lái xe đối với người lớn, trẻ em cần chuẩn bị giấy khai sinh).
- Sau khi hoàn tất thủ tục hàng không, quý khách tiến hành làm thủ tục kiểm tra an ninh để tiến hành vào phòng chờ.
- Hành khách sẽ ra máy bay trước giờ khởi hành 30 phút: Đối với chuyến bay Quốc nội, hành khách di chuyển ra máy bay qua các cửa có số thứ tự từ 01 – 06. Với các chuyến bay Quốc tế, hành khách ra máy bay qua các cửa có số thứ tự từ 07 – 11, di chuyển bằng xe bus hoặc cầu ống dẫn khách.

Hành khách có thể check-in online trước để tiết kiệm thời gian (Ảnh: sưu tầm)
5.2. Thủ tục với hành khách rời đi từ sân bay
Hành khách sau khi đáp chuyến bay xuống sân bay Phú Quốc, tiến hành thực hiện các thủ tục sau:
- Sau khi xuống máy bay, hành khách vào nhà ga thông qua cầu ống dẫn khách hoặc xe bus.
- Hành khách cần chuẩn bị trước thẻ nhận hành lý để tiến hành nhận hành lý ký gửi ở khu vực băng chuyền nhà ga đến.
- Trong trường hợp hành lý bị thất lạc, hành khách nên liên hệ với nhân viên hàng không tại quầy hành lý thất lạc nằm ở khu vực ga đến, hoặc có thể tìm nhân viên đại diện các hãng hàng không tại các quầy đại diện ở sảnh nhà ga.
- Hành khách nối chuyến có thể làm thủ tục tại các quầy dành cho hành khách chuyển tiếp gần cửa ga đến, hoặc có thể hỏi nhân viên hàng không để được hướng dẫn chi tiết.
- Khi rời khỏi Cảng Hàng Không Quốc tế Phú Quốc, hành khách có thể sử dụng phương tiện cá nhân hoặc công cộng như xe buýt, taxi để về trung tâm.

Hành khách tiền hành làm thủ tục tại sân bay Phú Quốc (Ảnh: sưu tầm)
6. Một số câu hỏi khác về sân bay Phú Quốc
6.1. Sân bay Phú Quốc cách Vinpearl bao xa?
Sân bay Phú Quốc cách Vinpearl khoảng 32 – 34km. Du khách di chuyển bằng ô tô từ sân bay về Vinpearl hết khoảng 40 – 50 phút. Ngoài ra, du khách cũng có thể thuê xe máy, đi xe bus hoặc sử dụng xe đưa đón của khách sạn để di chuyển đến Vinpearl.
Nghỉ dưỡng tại Vinpearl, du khách đừng quên kết hợp khám phá những khu vui chơi giải trí hàng đầu như VinWonders Phú Quốc, vườn thú Vinpearl Safari Phú Quốc.

Thỏa thích vui chơi tại VinWonders Phú Quốc
Trong đó, VinWonders Phú Quốc là công viên chủ đề quy mô lớn nhất Việt Nam gồm 6 phân khu, 12 chủ đề với hàng trăm trò chơi từ giải trí nhẹ nhàng đến cảm giác mạnh, đáp ứng nhu cầu của đông đảo du khách như: Đại lộ châu Âu, Khu làng bí mật, Thế giới lốc xoáy, Thế giới phiêu lưu, Thế giới diệu kỳ, cung điện Hải Vương.

Vườn thú bán hoang dã Vinpearl Safari Phú Quốc thu hút đông đảo du khách nhỏ tuổi
Cùng với đó, vườn thú bán hoang dã Vinpearl Safari Phú Quốc là một điểm đến không thể bỏ qua khi đến du lịch biển đảo Phú Quốc. Nơi đây là ngôi nhà chung của nhiều loại động vật quý hiếm như: Thiên nga trắng cổ đen, hạc, linh dương sừng kiếm Ả Rập… gồm khu vực vườn thú hoang dã và vườn thú mở.
Đặt vé VinWonders Phú Quốc nhận ưu đãi ngay
Đặt vé Vinpearl Safari Phú Quốc ngay
6.2. Sân bay Phú Quốc về phường Dương Đông đi xe gì?
Tùy vào số lượng người đi cùng, khả năng tài chính và nhu cầu mà du khách có thể lựa chọn các phương tiện di chuyển như: Xe ôm (chi phí khoảng 60.000 – 70.000 VNĐ/lượt), thuê xe máy nhận tại sân bay (120.000 – 200.000 VNĐ/xe/ngày), xe taxi (180.000 – 220.000 VNĐ/lượt tùy từng hãng) hoặc xe bus (50.000 VNĐ/lượt).

Du khách có thể lựa chọn xe bus để di chuyển từ sân bay Phú Quốc (Ảnh: Sưu tầm)
6.3. Sân bay Phú Quốc có gì ăn?
Giống như các sân bay khác, khu vực cung cấp dịch vụ ăn uống tại sân bay Phú Quốc rất đa dạng từ món Âu, Á đến các món ăn địa phương. Tại đây, du khách có thể thưởng thức nhiều món đồ ăn nhanh hoặc đặc sản Phú Quốc như bún quậy Phú Quốc, bún kèn Phú Quốc…

Du khách có thể thưởng thức bún quậy tại sân bay Phú Quốc (Ảnh: Sưu tầm)
6.4. Lịch sử xây dựng sân bay quốc tế Phú Quốc
Cảng hàng không Phú Quốc (hay còn gọi là sân bay Phú Quốc cũ, sân bay Dương Đông) được xây dựng từ thời Pháp thuộc. Khi đó, máy bay chính được sử dụng là DC3 với 32 ghế và đến thời kỳ đế quốc Mỹ xâm lược miền Nam nó vẫn được duy trì sử dụng.
Cảng hàng không Phú Quốc được nâng cấp lần đầu vào năm 1983, diện tích sân bay đã được nâng từ 996m2 lên tới 1496m2 để mở rộng quy mô hoạt động và đáp ứng những chiếc máy bay lớn hơn. Năm 1994 – 1995, Cảng hàng không Phú Quốc đã được xây dựng thêm nhà ga và một số công trình phục vụ.

Sân bay quốc tế Phú Quốc chính thức hoạt động vào đầu tháng 12/2012 (Ảnh: Sưu tầm)
Đến năm 2008, sân bay quốc tế Phú Quốc bắt đầu được xây dựng để thay thế cho Cảng hàng không Phú Quốc. Đến ngày 2/12/2012, sân bay quốc tế Phú Quốc chính thức đi vào hoạt động, sân bay Phú Quốc cũ được đóng cửa.
Bài viết vừa chia sẻ đến bạn tất tần tật thông tin về địa chỉ, sơ đồ sân bay, kinh nghiệm làm thủ tục đến và đi cùng những thông tin cần thiết về sân bay Phú Quốc. Hy vọng những thông tin được cập nhật trên đây sẽ giúp chuyến du lịch Phú Quốc của du khách trở nên thuận lợi và tuyệt vời hơn. Chúc bạn có được chuyến đi vui vẻ với nhiều trải nghiệm đáng nhớ!
Câu hỏi thường gặp về sân bay Quốc tế Phú Quốc
Sân bay Phú Quốc nằm ở đâu?
Sân bay Quốc tế Phú Quốc tọa lạc tại đặc khu Phú Quốc, tỉnh An Giang.
Có những hãng hàng không nào hoạt động tại sân bay Phú Quốc?
Các hãng hàng không nội địa Việt Nam như Vietnam Airlines, VietJet Air… đều khai thác các chuyến bay đến và đi từ sân bay Phú Quốc. Ngoài ra, sân bay cũng đón một số chuyến bay quốc tế từ các nước như Hàn Quốc, Trung Quốc, Thái Lan.
Cách di chuyển từ sân bay Phú Quốc về trung tâm?
Du khách có nhiều lựa chọn di chuyển như taxi (các hãng uy tín như Xanh SM), xe buýt của các hãng hàng không hoặc khách sạn, và dịch vụ xe đưa đón đặt trước. Taxi là lựa chọn phổ biến và nhanh chóng nhất.
Trong sân bay Phú Quốc có những tiện ích gì?
Sân bay Phú Quốc là sân bay quốc tế hiện đại với đầy đủ tiện ích cơ bản bao gồm nhà hàng ăn uống, quán cà phê và quầy thông tin hỗ trợ du khách…
Các sản phẩm được yêu thích nhất
vi
English
中文 (中国)
한국어 







![[MEGA SALE 12.12] Ngày đôi rộn ràng, săn deal ngập tràn – Ưu đãi tới 50% giá vé VinWonders](https://static.vinwonders.com/production/2025/11/DD-111125-1920-x-920-336x161.jpg)

![[Ưu đãi 5%] Trải nghiệm ẩm thực Deep Sea ngon hết ý, tận hưởng không gian chill mê ly](https://static.vinwonders.com/production/DSC_5620-329x220.jpg)
